- Accueil /
- Projet de construction Immeuble de logement d’habitaion Tsinga-Village
Secteur d’activité
Classification ERP
Localisation
Maitre d’ouvrage
Architecte
Surface bâtie /
Surface du terrain
Reference
Phase
Date de démarrage des études
Date de démarrage de la maitrise d’œuvre
Logement
—–
Tsinga-village, Yaoundé, centre Cameroun
Privé
Menla’ BET
400m2 /
460m2
————–
Etudes complètes Maitrise d’œuvre
Décembre 2023
Mars 2024
Le projet vise à construire un immeuble de logements collectifs très haut standing. Le bâtiment est de type Rez-de-jardin, rez-de-chaussée et trois étages avec une terrasse aménagée.
NOTRE MISSION
Le bureau d’études techniques Menla’ BET a conçu l’architecture complète et l’ensembles de toutes les études des études géotechniques aux plans détaillés des lots architecture, génie civil, électricité CFO et CFA et Installation sanitaire. La conception basée sur le BIM (Building Information Modeling) a permis aux différentes équipes de collaborer sur un même modèle durant toute l’étude et de modéliser l’ensemble de l’ouvrage en 3D. Le travail s’est achevé par une estimation très réaliste du coût du projet par le département Métré de Menla’ BET.
|
Lot
|
Consistance
|
Production
|
|---|---|---|
|
Architecture
|
- Design architectural (Esquisse 3D)
- Revêtement |
- Plans de distribution, coupes et façades
- Choix des produits de revêtement intérieur et extérieur |
|
Génie civil
|
- Dimensionnement de la Structure béton armée
- Dimensionnement structure métallique pour terrasse couverte |
- Modèle 3D de l’ossature
- Plans de fondation - Plans de ferraillage et plans de coffrage - Notes de calculs |
|
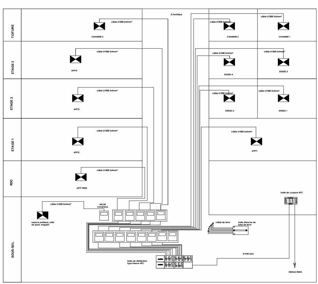
Electricité CFO
|
- Dimensionnement du réseau de distribution électrique
- Architecture du système d’éclairage |
- Plans d’implantation des prises électriques
- Plans d’implantation des luminaires et des commandes - Schémas électriques - Notes de calculs |
|
Electricité CFA
|
- Architecture et choix des équipements de vidéosurveillance, de contrôle d’accès et du réseau informatique
- Architecture et choix des équipements de sécurité incendie |
- Plan d’implantation des équipements de vidéosurveillance et de contrôle d’accès
- Plan d’implantation des équipements de détection et de signalisation incendie |
|
Installation sanitaire
|
- Dimensionnement du réseau d’évacuation des eaux usées
- Dimensionnement du réseau d’alimentation en eau potable |
- Emplacement fonctionnel des équipements Plans du réseau d’alimentation en eaux potable et local technique
- Plans du réseau d’évacuation et d'assainissement |
|
Lot
|
Consistance
|
Production
|
|---|---|---|
|
• Architecture
• Génie civil • Electricité CFO • Electricité CFA • Installation sanitaire |
- Suivi des travaux de la qualité et de la conformité des travaux de seconds œuvres
- Accompagnement technique dans l’exécution des travaux |
- Plans de recollement
- Choix des produits de revêtement intérieur et extérieur - Plans de détail nécessaire à l’exécution des tâches délicates |